Triple Fronted Revival

  • Category Architecture
  • Year 2019
  • Location Ivanhoe East, VIC

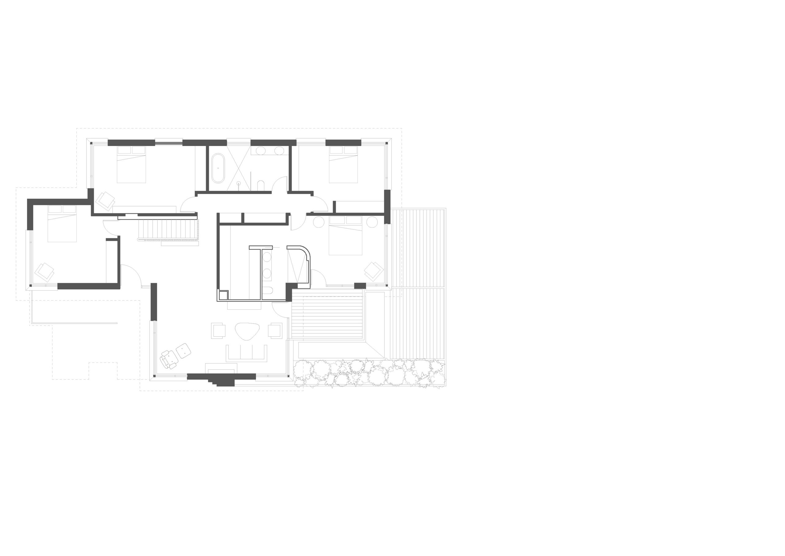
A carefully crafted, modern intervention has propelled this post-war bungalow into the contemporary world, while maintaining the original architectural features and charm. The building envelope has only increased by 25 sq/m, as the sloping site allowed a lower floor extension mostly under the original building. This created the opportunity for an open plan kitchen living area that flows seamlessly to an outdoor entertainment terrace and garden.

A large feature skylight articulates the kitchen and bathes it in light, while a steel finned façade delineates the lower floor extension that softens in shape to form a fence, separating the garden and driveway. The verticality and curves in the screen are a recurring theme throughout the interior, including delicate, crafted timber screens and walls that enhance spatial flow and light. Tree top views from the upper floor are enhanced by a roof garden with an adjacent deck for added refuge.

Project Team

Pleysier Perkins

Berit Barton

Nicholas Arthur

Georgie Marks

Builder

Landscape Design

Photography