Normanby House

  • Category Architecture
  • Year 2020
  • Location Brighton, VIC

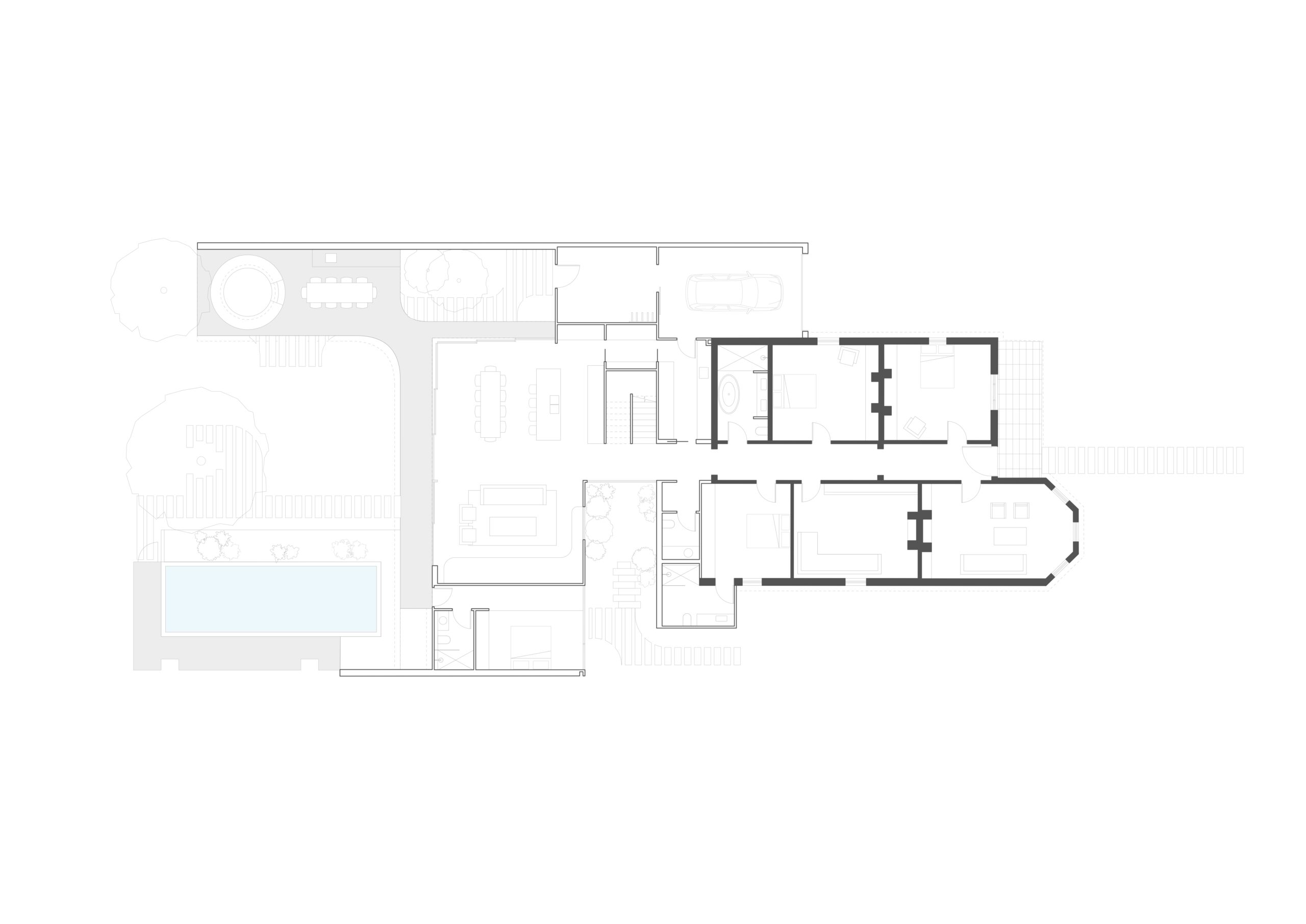
Set on a substantial Bayside property, this modern three storey extension and renovation transforms a double fronted Victorian villa into an impressive contemporary home for a family of four. While sharing the generous proportions and solid materials of the Victorian, the new extension stands in direct contrast featuring extensive glazing and contemporary detailing.

Distinctly separate yet sensitively connected to the original house, the stairwell and adjacent courtyard sit between old and new which includes the kitchen, dining, living on the ground floor, the master domain on the upper and the gym, cellar and sauna in the basement. A formed concrete loggia protects the northern glazing and curves to the east covering the outdoor entertaining area and sunken lounge pit.

Project Team

Pleysier Perkins

Simon Perkins

Berit Barton

Georgie Marks

Lisa Biggs

Stacie Ng

Builder

Furniture, Styling & Art

Photography