Link House

  • Category In Progress
  • Year In Progress
  • Location Sandringham, VIC

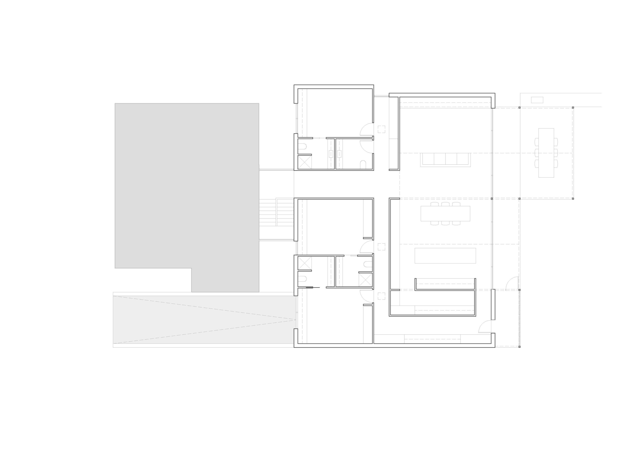
Located in Sandringham, the extension of this existing heritage home consists of connecting the heritage front to a new contemporary structure at the back of the house using a glass link. Creating a clean break between the two structures, with garden views on either side, the separation allows the use of more contemporary materials such as handmade clay bricks and steel windows at the back of the house while retaining the existing heritage architecture at the front.

With the main bedroom, study and lounge housed in the existing renovated house, the extension contains three kids’ bedrooms and the main kitchen and living area on the ground floor, with a five-car garage, gym, storage and bathroom in the basement. The sunken courtyard on one side of the link allows light and ventilation into the basement, while on the ground floor, the main kitchen and living area has two gable cathedral ceilings that flood the space with light and sky views. The gable extends over the outdoor entertaining area with an operable roof.

Project Team

Pleysier Perkins

Stewart Youngblutt

Ruby Lang

Courtney Daniels

Visualisation