


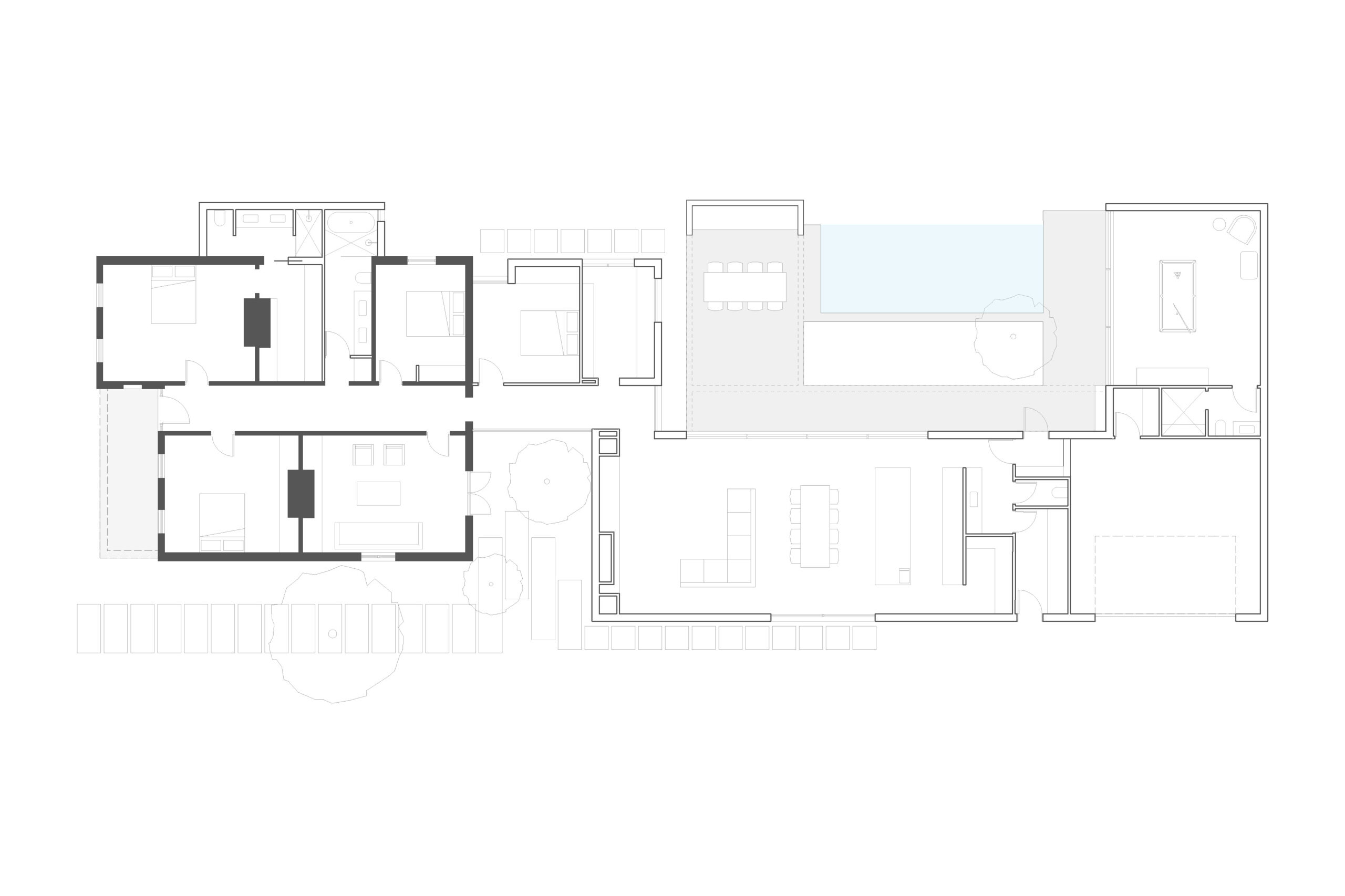
Only a stone’s throw from the beach, this heritage Victorian home is located on a corner block lined with oak trees. A contemporary gabled pavilion is sympathetically connected to the original heritage house via a glazed link and feature courtyard. Private spaces including bedrooms, bathrooms, a study and lounge have Victorian proportions and details, while the kitchen, dining, living, games room and garage is contained within the new pavilion.
The pavilion is orientated towards a north facing outdoor entertaining area and swimming pool with oak clad raked ceilings and travertine floors that seamlessly connect inside and out. A full-width strip skylight casts natural light into the kitchen, deftly separating material elements and interior volumes. A bolder approach to colour has been applied to the Victorian rooms, celebrating decorative architraves, skirtings, arches and cornices. This contrasts the monochromatic palette and refined detailing in the pavilion, which provides a calm and peaceful haven for family life.
Pleysier Perkins
Simon Perkins
Julian Legg
Mark Watson
Elise Burton