


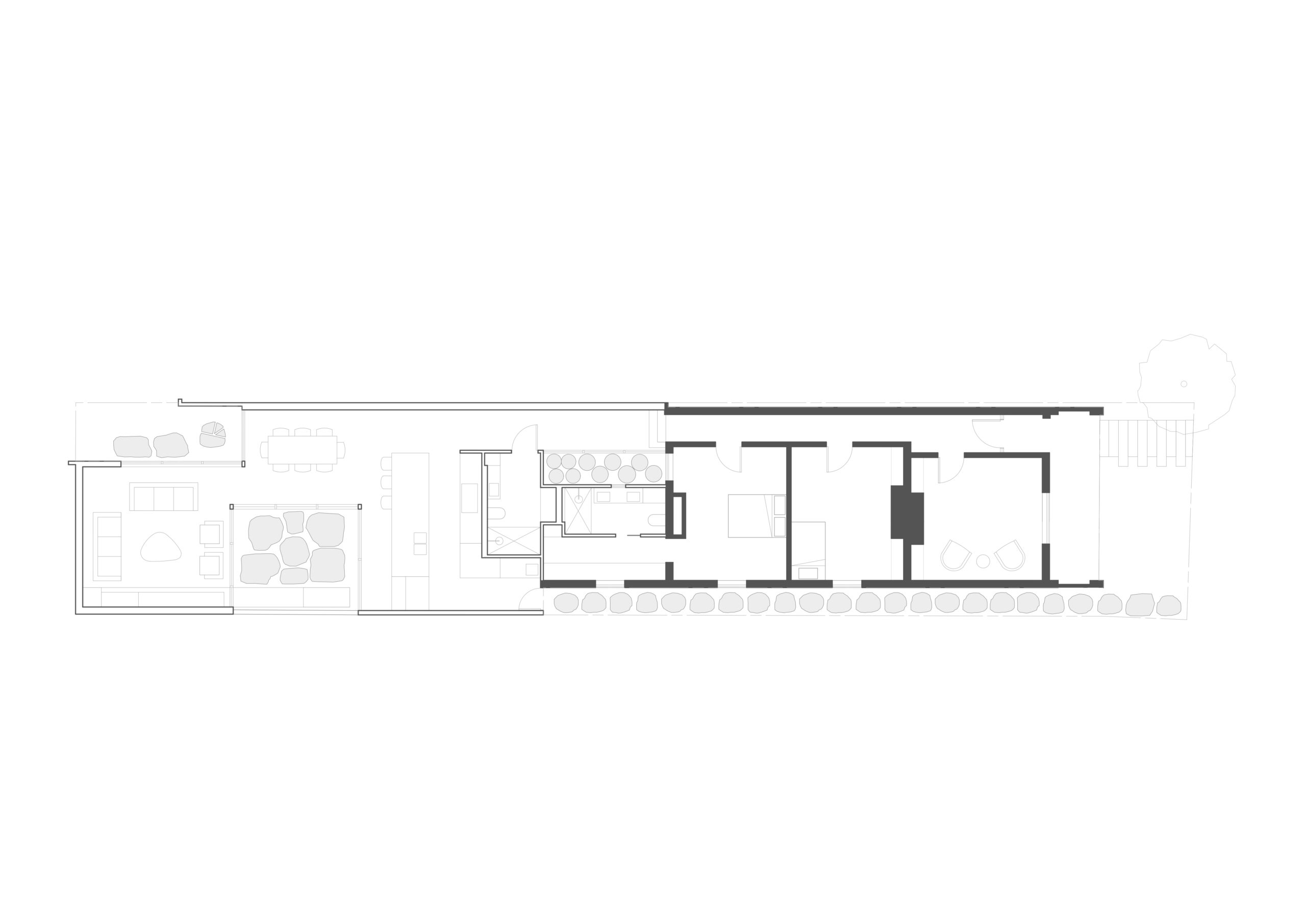
The design of this single fronted Victorian terrace responds to the constraints of a tight site and the lack of both natural light and open plan living. Instead of the traditional backyard extension, new living spaces are interlaced within three private courtyards.
These additional spaces not only bring light into the long narrow building, but also blur the boundaries of inside and out. The gardens become part of the indoors and allow a continued visual connection between the different living areas. A popped-up roof at the back of the extension generates a sense of space despite the small footprint and allows light in from all directions through high skylight windows.
Pleysier Perkins
Berit Barton
Lisa Biggs
Elise Burton