

This Red Hill site features the client’s home as well as a small glamping setup that he successfully rents out on Airbnb. The brief was to create a more permanent structure that housed more amenities and would appeal to a larger Airbnb audience, and develop a prototype that can be sold and used on other sites.
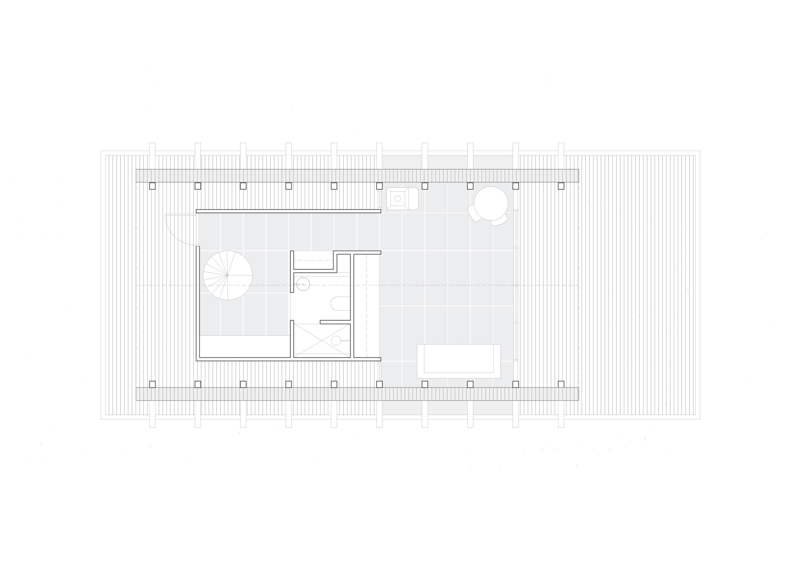
Using a simple A-frame methodology, where the roof and walls are one, high cathedral ceilings make the space feel large despite the small footprint, and maximise views of the landscape. The main living area opens out to a large deck, while a bathroom and kitchen pod sits behind with the bedroom on top, accessed via a spiral staircase. Instead of a balustrade off the bedroom, which would obscure the views, a net material hangs over the living area doubling as a large hammock.
Externally, galvanised steel requires little maintenance and will soften over time. Inside, exposed steel beams are expressed rather than concealed, while plywood walls and floors add honesty and warmth. This simple structure creates an interesting sculptural form in the landscape and has the potential to be shipped as a kit and assembled on site by a local builder.